El estudio de interiorismo de Paco Lago ha diseñado el nuevo espacio gastronómico del restaurante Ta-Kumi de Marbella (Málaga) buscando una experiencia más completa, sensorial y percepctiva del cliente.
Memoria del proyecto:
Cuando Toshio y Álvaro se conocieron, allá por el cambio de milenio, no eran precisamente novatos. Su experiencia tras los fogones, así como una ética de trabajo digna de admiración, ya sentaron las bases de lo que estaba por venir.
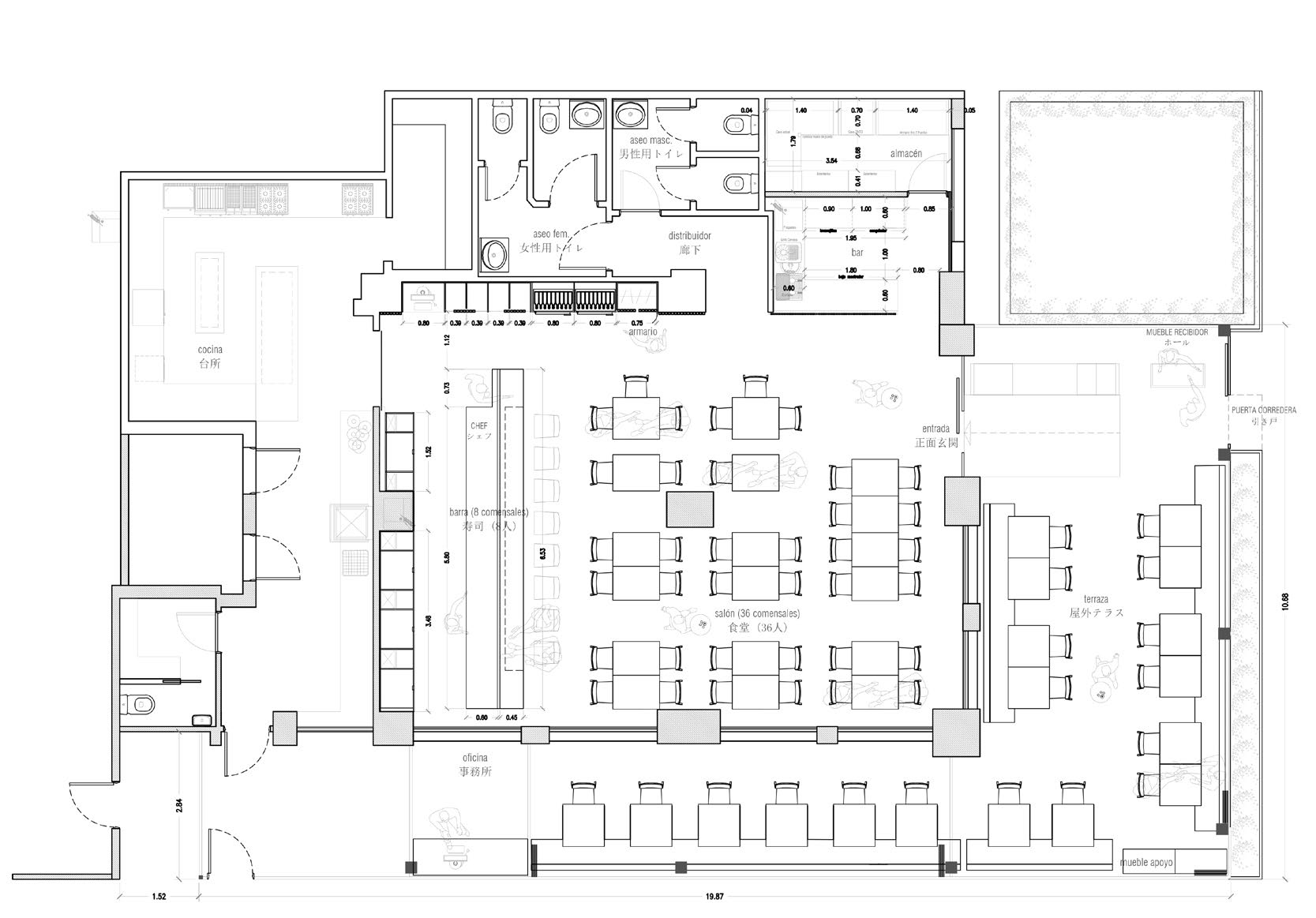
Desde luego, Ta-Kumi ya era una referencia de calidad gastronómica en España antes de que entrasen en nuestro estudio en busca del reto creativo de mejorar lo difícilmente mejorable. No partían de cero, y eran conscientes de su buena reputación, pero nuestra labor era clara: Elevar el concepto, de cien a mil y hacer que, además de gastronómica, la experiencia del cliente final fuese completa, sensorial y perceptiva, a través de los elementos, luces y rincones de un espacio que, obligatoriamente, tenía que evocar al Japón más costumbrista.
Maderas, cemento, luces directas e indirectas, integración de espacios externos, como la terraza, en el mismo concepto, y la eterna premisa de cuidar hasta el más mínimo detalle de su decoración interior, así como la presencia sempiterna del cuchillo, herramienta legendaria en la cultura culinaria japonesa, que nos sirve como hilo conductor de la propuesta de diseño.
El resultado ha superado expectativas, propias y ajenas. Otro reto que celebramos, juntos, haber alcanzado y rebasado. El diseño, ahora sí, a la altura de su cocina.
UBICACIÓN: Gregorio Marañón 4. Marbella, Málaga
AUTOR: Paco Lago
SUPERFICIE CONSTRUIDA: 288 m2
INVERSIÓN: 798€/m2
INAUGURACIÓN: June 2020




