La rehabilitación integral de la discoteca Sutton, proyecto de interiorismo de DPoch Studio, se ha completado en 7 semanas y 5 días, superando el objetivo de ocho semanas, y se entregó lista para abrir en fin de semana, optimizando así las ganancias y minimizando las pérdidas que supondría un cierre adicional. Gracias a la estrategia del proceso constructivo liderada por ConstruNext enfocada en un ejercicio de reingeniería con el reto de construir el diseño y acometerlo en tiempo, forma y calidad con el precio objetivo.
La icónica discoteca Sutton, uno de los referentes indiscutibles del ocio nocturno en Barcelona, ha culminado su reforma integral en un tiempo récord de solo siete semanas y cinco días, un logro posible gracias al proyecto pionero de reingeniería desarrollado por ConstruNext, empresa ganadora de la licitación convocada por la sala en 2024.
La renovación debía realizarse inicialmente en el verano de 2024, pero el planteamiento original no garantizaba ni los plazos ni el ajuste presupuestario necesario. Por ello, Sutton decidió posponer la obra a 2025 y confiar a ConstruNext que replanteara el proyecto desde cero. Entre enero y abril de 2025, la compañía desarrolló una reingeniería exhaustiva, reformulando soluciones técnicas, tiempos y procesos para asegurar viabilidad, eficiencia y precisión. El proyecto de interiorismo fue encargado a Daniel Poch de DPoch Studio.
El resultado: la obra comenzó el 4 de agosto y se entregó el 26 de septiembre, lista para reabrir en fin de semana y optimizar al máximo la recuperación de ingresos. En total, se ejecutó en 7 semanas y 5 días, adelantando el plazo previsto y reduciendo al mínimo el cierre del local en el período de menor afluencia. Esta aceleración ha supuesto un ahorro económico significativo, dado que cada fin de semana cerrado genera pérdidas relevantes para el club.
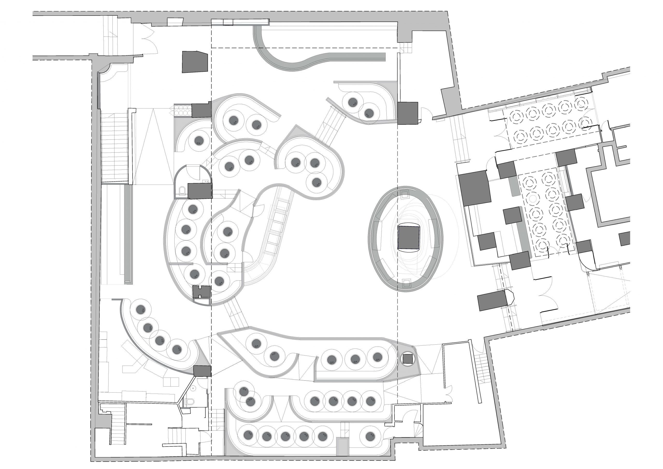
La intervención ha supuesto una transformación total: demolición completa del interior previo, renovación integral de todas las instalaciones, revestimientos, iluminación y una nueva propuesta estética. El elemento central del nuevo diseño es el mobiliario curvo, que ahora define la distribución del espacio.
Para lograr esta precisión formal en un plazo tan reducido, ConstruNext empezó las obras antes de entrar en el local e implantó un proceso a medida basado en la coordinación, superposición y control gracias a toda la digitalización del proyecto para poder ir construyendo en paralelo en los distintos talleres especializados para cuando se cerrara el local solo se tuviera que realizar los desmontajes y entrar a montar lo previamente ya construido.
- Se realizó un escaneado topográfico milimétrico del local y digitalizó con tecnología BIM todo el proyecto.
- La constructora se alineó con partners estratégicos superponiendo las tareas en distintos talleres profesionales.
- Se coordinó y planificó toda la operativa.
La decisión clave que aseguraba el éxito fue la prefabricación en hormigón 3D de todas las piezas curvas para la nueva configuración espacial que reducían todos los indicadores de riesgos versus a una construcción tradicional.
La metodología del proyecto combinó Design Thinking para replantear necesidades y soluciones, Lean Construction para maximizar eficiencia y eliminar desperdicios, y Agile para impulsar una ejecución flexible y acelerada.
Esta estrategia del proceso constructivo no solo redujo tiempos y aseguró la calidad, sino que permitió asegurar el precio de la reforma ya que se redujeron al máximo las incertidumbres, muy habitual en reformas, habiendo una desviación de tan solo el 1’5% del presupuesto aprobado.
Joaquín Frigola, CEO de ConstruNext, afirma: “Este proyecto demuestra que cuando se cuestiona y se rediseña todo el proceso constructivo, los límites desaparecen. Completar una reforma integral en siete semanas y cinco días solo es posible aplicando reingeniería real, prefabricación y una metodología Lean rigurosa”.
Por su parte, Robert Massanet, director de Sutton Club, señala: “Queríamos un cambio profundo, una renovación que devolviera a Sutton a la vanguardia. El nuevo diseño es envolvente, espectacular y técnicamente impecable. Haber logrado todo esto en tan poco tiempo es un hito para nosotros”.
La familia Cano, impulsora también de otros locales emblemáticos como Gatsby, Bikini o Imperator, abre así una nueva etapa para Sutton, reforzando su liderazgo en la escena nocturna barcelonesa. La sala ha logrado posicionarse en el puesto 12 de la lista The World’s 100 Best Clubs 2025, anunciada durante la gala de los Golden Moon Awards —considerados los “Oscar” del ocio nocturno— celebrada este año en Valencia. Este reconocimiento internacional refuerza su prestigio y subraya la excelencia de su propuesta de ocio, consolidando su reputación como uno de los referentes mundiales en discotecas.
Reingeniería y ejecución de obra: ConstruNext Diseño interior: Dani Poch (DPoch Studio) Superficie: 1.500 m² Fotografía: Sergi Espinosa



