PROYECTO: Nueva Terminal del Aeropuerto de Ámsterdam-Schiphol (Holanda)
ARQUITECTO: KL AIR
CIUDAD: Ámsterdam-Schiphol (Holanda)
TIPOLOGÍA: Transportes
Prioridad al espacio, la luz
y las vistas
Uno de los aspectos fundamentales de la nueva terminal diseñada por KL AIR es su integración urbanística en el resto del aeropuerto. La nueva terminal ofrecerá diferentes escenarios llenos de luz natural.
KL AIR, integrado por Estudio Lamela, KAAN Architecten, ABT e Ineco, diseñará la Nueva Terminal del Aeropuerto de Ámsterdam Schiphol. El vestíbulo de salidas y llegadas, que acogerá a 14 millones de viajeros al año, estará finalizado en 2023. KL AIR cuenta también con el apoyo del artista plástico Arnout Meijer Studio y las ingenierías especializadas DGMR y Planeground.
El diseño se ha inspirado en las terminales existentes y en el carácter distintivo que ha moldeado el aeropuerto durante los últimos 50 años: funcionalidad, orientación al usuario y atención al detalle, todo ello integrado en un ambiente de calma, distinción y sentido práctico. Se ha dado prioridad al espacio, la luz y las amplias vistas, que representan el ADN de Schiphol. El diseño presentado perpetúa el concepto de sobriedad y de “terminal única”, incluyendo los flujos de pasajeros en tránsito.
La esencia modernista de la terminal de 1967 ha servido de inspiración -en particular el trabajo realizado en los interiores por el diseñador Kho Liang Le (1927-1975). La estructura del edificio será visible sólo mínimamente, permitiendo entrever el funcionamiento del esqueleto estructural. Ningún soporte bloqueará el espacio. Los pilares de la fachada y ciertas áreas funcionales del edificio soportarán la carga de la cubierta. Su apertura facilitará cualquier futuro cambio, lo cual constituye una muestra de su sostenibilidad arquitectónica.
La calidad arquitectónica de la nueva terminal se manifiesta en todas sus facetas: se trata de un lugar distribuido de forma práctica y de fácil uso para el usuario, a la vez que ofrece un gran espacio con una atmósfera agradable y llena de luz. Lo cotidiano y lo extraordinario se funden para crear un excepcional espacio de bienvenida.
El confort del viajero es primordial para el diseño, tanto la del pasajero individual como la del público general. Las vistas del conjunto, la facilidad de movimiento, la luz natural y una sensación de amplitud de espacio darán la bienvenida tanto a los pasajeros de salidas como de llegadas. Tras cruzar la aduana, los pasajeros de llegadas accederán a un espacioso vestíbulo, iluminado con luz natural y con vistas al hall de salidas. En lugar de acceder al exterior bajo un paso elevado, los pasajeros serán conducidos a la plaza Jan Dellaertplein, frente a Schipol Plaza.
Situada en el centro del vestíbulo habrá una gran plataforma. Desde la plataforma elevada los viajeros quedarán sorprendidos por la grandiosidad espacial de la terminal y las vistas al exterior a través de las fachadas de vidrio. Inicialmente serán vistas hacia el ‘lado tierra’ y más arriba hacia el ‘lado aire’, con los aviones y una panorámica del cielo y del paisaje holandés. Tras el proceso de embarque de equipajes y el check-in, el control de seguridad tendrá lugar en un área con suelos de madera y pozos de luz rellenos de vegetación que crearán una atmosfera más relajante.
La plataforma elevada de salidas proporciona grandes ventajas, entre ellas crear una división natural de usuarios que ayuda a evitar la acumulación de pasajeros. Además, hace posible una intersección en dos alturas, de modo que tanto los pasajeros de salidas como los de llegadas podrán disfrutar de un recorrido escénico a lo largo de la terminal. Por otra parte, la elevación de esta plataforma permite la circulación del equipaje facturado bajo ella, lo cual es un aspecto importante para Schiphol, ya que es uno de los principales aeropuertos de escala.
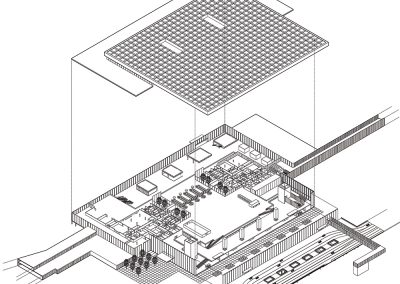
La atmósfera de la terminal está principalmente definida por la luz natural, lo cual tiene un efecto positivo sobre la experiencia de los usuarios. El techo y la cubierta de la parte central constituyen una auténtica corona de luz, extendiéndose 180x150m y proporcionando a los pasajeros acceso a la luz local día y noche. Se trata de una celosía de cuadrados coronada por paneles de vidrio y soportada por ‘vigas en cajón’ de gran formato cuya sección crece de cara inferior a cara superior. Los pasajeros podrán ver el cielo a través de una membrana ultra-fina. En el interior del recubrimiento del techo existen instalaciones que permiten cambiar los efectos de color, matiz y óptica de la luz. El frente acristalado y el techo con luz indirecta subrayan el típico carácter holandés de la terminal y evocan las llanuras y los cielos nubosos de la Edad Dorada de la pintura holandesa.


